SHAREHOUSE
プレミア多摩川
管理会社 株式会社オークハウス
当物件は学割がご利用いただけません。
最終更新日 2024-11-26 19:15
PAO利用可能物件 スマート会員 Fixプラン この物件のこだわり 礼金なし 敷金なし 保証金なし 仲介手数料なし 保証人不要 保証会社不要 外国人入居可 家具家電付き
                            I am a manager !
            
                        
                
            
                    
なんといってもフレンドリーでイベント大好きな住人さん達が特徴のハウス♪最寄の鵜の木駅までは徒歩4分と女性も安心の明るい帰り道!多摩川も近く自然あふれる環境があなたの日々の疲れを癒します!渋谷まで23分、蒲田まで8分と都内へのアクセスも文句なし!ラウンジにはBGMが流れておりカフェのような空間があなたの入居をお待ちしております!人気物件なので早めの問い合わせを!※非喫煙物件のため喫煙者の方の入居はできませんのでご注意下さい
物件概要
基本情報
- 住所 東京都大田区鵜の木
 - 
                                                
                    最寄り駅1: 
                        東急多摩川線 /
                        鵜の木駅まで徒歩4分                    
 - ターミナル駅 渋谷駅まで鵜の木駅から18分
 - 建物概要 木造 2階建て
 - 管理人巡回頻度 週1回
 - 清掃頻度 週2回
 - 
            
                毎月費用                (賃料 / 共益費)
            
                            シングル                ¥37,000〜 /
                ¥15,000〜
                
 - 
            契約料(契約時のみ)
                            シングル                ¥50,000〜
                
 - 
                PAO利用可能物件
                お支払いにPAOをご利用いただけます。
PAOの残高を確認する(※ログインが必要です)
PAOについてはこちら - 
            この物件のこだわり
            
外国人向け
庭
駐輪場
禁煙ハウス
家具家電付き 家賃に水道光熱費を含む
友人・家族宿泊可物件
中規模
個室のあるシェアハウス
自然が多い 5万円以下
 
地図
共用設備
設備(水回り)
- 
                                                            
トイレ男女共用
 - 
                                                            
トイレ女性用
 - ウォシュレット付洋式トイレ 女性用
 - ウォシュレット付洋式トイレ 共用
 - 
                                                            
シャワー
 - 
                                                            
洗面所男女兼用
 - 
                                                            
キッチン
 
共用スペース設備
- 
                                                            
ラウンジ
 
家電・機器
- 
                                                            
洗濯機
 - 
                                                            
乾燥機
 - 
                                                            
掃除機
 - 
                                                            
アイロン
 
インターネット
- 
                                                            
インターネット回線:光
 
調理家電
- キッチン - コンロ
 - 
                                                            
電子レンジ
 - 
                                                            
炊飯器
 - 
                                                            
オーブン
 - 
                                                            
フードストッカー
 
調理器具
- 
                                                            
フライパン
 - 
                                                            
皿類
 - 
                                                            
鍋類
 - 
                                                            
箸/フォーク/スプーン類
 
セキュリティ設備
- 
                                                            
玄関オートロック
 
屋外設備
- 
                                                            
物干しスペース
 - 
                                                            
テラス
 - 
                                                            
庭
 - 
                                                            
駐輪場
 
入居条件
- 
                                                            
禁煙ハウス
 
その他の特徴
禁煙ハウス
住宅街
駅5分以内
友人・家族宿泊可物件
中規模
自然が多い
外国人向け
5万円以下
物件写真
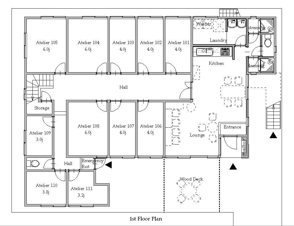
図面
空室情報
%NUMBER%件見つかりました
101 | シングル | 満室
| 契約料(契約時のみ) | ¥50,000 | |
|---|---|---|
| 毎月費用 | 賃料 | ¥48,000 | 
| 共益費 | 
                                    ¥15,000                
                                 共益費に水道光熱費を含む  | 
        |
| 合計 | 
                                ¥63,000
                                 ¥47,000 スマート会員で最大16,000円割引!  | 
        |
| 初期費用概算 | 
                ¥113,000 ※)契約日が月初1日の場合の概算です。正確な金額はカート画面からお見積りが可能です。  | 
        |
| カード決済:家賃・初期費用(カード決済は外国籍の方のみご利用頂けます。日本人の方はご利用頂けません。予めご了承ください。) 所在階:1階 部屋タイプ: シングル ベッド数:1 広さ:6.6m² 入居条件:男性/女性 定員:1名 * 友人宿泊:可 *の追加費用が必要になります | ||
ロケーション
- 
                                    
キッチン・ラウンジに近い
 
家電・機器
- 
                                                            
エアコン
 - 
                                                            
照明器具
 - 
                                                            
テレビジャック
 
インターネット
- 
                                                            
有線LAN
 
調理家電
- 
                                                            
冷蔵庫
 
家具
- 
                                                            
収納
 - 
                                                            
シングルベッド
 - 
                                                            
デスク&チェア
 - 
                                                            
カーテン
 
屋外設備
- 
                                                            
個別ポスト
 
102 | シングル | 満室
| 契約料(契約時のみ) | ¥50,000 | |
|---|---|---|
| 毎月費用 | 賃料 | ¥49,000 | 
| 共益費 | 
                                    ¥15,000                
                                 共益費に水道光熱費を含む  | 
        |
| 合計 | 
                                ¥64,000
                                 ¥48,000 スマート会員で最大16,000円割引!  | 
        |
| 初期費用概算 | 
                ¥114,000 ※)契約日が月初1日の場合の概算です。正確な金額はカート画面からお見積りが可能です。  | 
        |
| カード決済:家賃・初期費用(カード決済は外国籍の方のみご利用頂けます。日本人の方はご利用頂けません。予めご了承ください。) 所在階:1階 部屋タイプ: シングル ベッド数:1 広さ:6.6m² 入居条件:男性/女性 定員:1名 * 友人宿泊:可 *の追加費用が必要になります | ||
家電・機器
- 
                                                            
エアコン
 - 
                                                            
照明器具
 - 
                                                            
テレビジャック
 
インターネット
- 
                                                            
有線LAN
 
調理家電
- 
                                                            
冷蔵庫
 
家具
- 
                                                            
収納
 - 
                                                            
シングルベッド
 - 
                                                            
デスク&チェア
 - 
                                                            
カーテン
 
屋外設備
- 
                                                            
個別ポスト
 
103 | シングル | 2024/12/13 ~
| 契約料(契約時のみ) | ¥50,000 | |
|---|---|---|
| 毎月費用 | 賃料 | ¥49,000 | 
| 共益費 | 
                                    ¥15,000                
                                 共益費に水道光熱費を含む  | 
        |
| 合計 | 
                                ¥64,000
                                 ¥48,000 スマート会員で最大16,000円割引!  | 
        |
| 初期費用概算 | 
                ¥114,000 ※)契約日が月初1日の場合の概算です。正確な金額はカート画面からお見積りが可能です。  | 
        |
| カード決済:家賃・初期費用(カード決済は外国籍の方のみご利用頂けます。日本人の方はご利用頂けません。予めご了承ください。) 所在階:1階 部屋タイプ: シングル ベッド数:1 広さ:6.6m² 入居条件:男性/女性 定員:1名 * 友人宿泊:可 *の追加費用が必要になります | ||
家電・機器
- 
                                                            
エアコン
 - 
                                                            
照明器具
 - 
                                                            
テレビジャック
 
インターネット
- 
                                                            
有線LAN
 
調理家電
- 
                                                            
冷蔵庫
 
家具
- 
                                                            
収納
 - 
                                                            
シングルベッド
 - 
                                                            
デスク&チェア
 - 
                                                            
カーテン
 
屋外設備
- 
                                                            
個別ポスト
 
104 | シングル | 満室
| 契約料(契約時のみ) | ¥50,000 | |
|---|---|---|
| 毎月費用 | 賃料 | ¥55,000 | 
| 共益費 | 
                                    ¥15,000                
                                 共益費に水道光熱費を含む  | 
        |
| 合計 | 
                                ¥70,000
                                 ¥54,000 スマート会員で最大16,000円割引!  | 
        |
| 初期費用概算 | 
                ¥120,000 ※)契約日が月初1日の場合の概算です。正確な金額はカート画面からお見積りが可能です。  | 
        |
| カード決済:家賃・初期費用(カード決済は外国籍の方のみご利用頂けます。日本人の方はご利用頂けません。予めご了承ください。) 所在階:1階 部屋タイプ: シングル ベッド数:1 広さ:9.9m² 入居条件:男性/女性 定員:1名 * 友人宿泊:可 *の追加費用が必要になります | ||
家電・機器
- 
                                                            
エアコン
 - 
                                                            
照明器具
 - 
                                                            
テレビジャック
 
インターネット
- 
                                                            
有線LAN
 
調理家電
- 
                                                            
冷蔵庫
 
家具
- 
                                                            
収納
 - 
                                                            
シングルベッド
 - 
                                                            
デスク&チェア
 - 
                                                            
カーテン
 
屋外設備
- 
                                                            
個別ポスト
 
106 | シングル | 満室
| 契約料(契約時のみ) | ¥50,000 | |
|---|---|---|
| 毎月費用 | 賃料 | ¥48,000 | 
| 共益費 | 
                                    ¥15,000                
                                 共益費に水道光熱費を含む  | 
        |
| 合計 | 
                                ¥63,000
                                 ¥47,000 スマート会員で最大16,000円割引!  | 
        |
| 初期費用概算 | 
                ¥113,000 ※)契約日が月初1日の場合の概算です。正確な金額はカート画面からお見積りが可能です。  | 
        |
| カード決済:家賃・初期費用(カード決済は外国籍の方のみご利用頂けます。日本人の方はご利用頂けません。予めご了承ください。) 所在階:1階 部屋タイプ: シングル ベッド数:1 広さ:6.6m² 入居条件:男性/女性 定員:1名 * 友人宿泊:可 *の追加費用が必要になります | ||
ロケーション
- 
                                    
キッチン・ラウンジに近い
 - 駐車場、駐輪場に近い
 
家電・機器
- 
                                                            
エアコン
 - 
                                                            
照明器具
 - 
                                                            
テレビジャック
 
インターネット
- 
                                                            
有線LAN
 
調理家電
- 
                                                            
冷蔵庫
 
家具
- 
                                                            
収納
 - 
                                                            
シングルベッド
 - 
                                                            
デスク&チェア
 - 
                                                            
カーテン
 
屋外設備
- 
                                                            
個別ポスト
 
107 | シングル | 満室
| 契約料(契約時のみ) | ¥50,000 | |
|---|---|---|
| 毎月費用 | 賃料 | ¥49,000 | 
| 共益費 | 
                                    ¥15,000                
                                 共益費に水道光熱費を含む  | 
        |
| 合計 | 
                                ¥64,000
                                 ¥48,000 スマート会員で最大16,000円割引!  | 
        |
| 初期費用概算 | 
                ¥114,000 ※)契約日が月初1日の場合の概算です。正確な金額はカート画面からお見積りが可能です。  | 
        |
| カード決済:家賃・初期費用(カード決済は外国籍の方のみご利用頂けます。日本人の方はご利用頂けません。予めご了承ください。) 所在階:1階 部屋タイプ: シングル ベッド数:1 広さ:6.6m² 入居条件:男性/女性 定員:1名 * 友人宿泊:可 *の追加費用が必要になります | ||
ロケーション
- 駐車場、駐輪場に近い
 
家電・機器
- 
                                                            
エアコン
 - 
                                                            
照明器具
 - 
                                                            
テレビジャック
 
インターネット
- 
                                                            
有線LAN
 
調理家電
- 
                                                            
冷蔵庫
 
家具
- 
                                                            
収納
 - 
                                                            
シングルベッド
 - 
                                                            
デスク&チェア
 - 
                                                            
カーテン
 
屋外設備
- 
                                                            
個別ポスト
 
108 | シングル | 満室
| 契約料(契約時のみ) | ¥50,000 | |
|---|---|---|
| 毎月費用 | 賃料 | ¥55,000 | 
| 共益費 | 
                                    ¥15,000                
                                 共益費に水道光熱費を含む  | 
        |
| 合計 | 
                                ¥70,000
                                 ¥54,000 スマート会員で最大16,000円割引!  | 
        |
| 初期費用概算 | 
                ¥120,000 ※)契約日が月初1日の場合の概算です。正確な金額はカート画面からお見積りが可能です。  | 
        |
| カード決済:家賃・初期費用(カード決済は外国籍の方のみご利用頂けます。日本人の方はご利用頂けません。予めご了承ください。) 所在階:1階 部屋タイプ: シングル ベッド数:1 広さ:9.9m² 入居条件:男性/女性 定員:1名 * 友人宿泊:可 *の追加費用が必要になります | ||
ロケーション
- 駐車場、駐輪場に近い
 
家電・機器
- 
                                                            
エアコン
 - 
                                                            
照明器具
 - 
                                                            
テレビジャック
 
インターネット
- 
                                                            
有線LAN
 
調理家電
- 
                                                            
冷蔵庫
 
家具
- 
                                                            
収納
 - 
                                                            
シングルベッド
 - 
                                                            
デスク&チェア
 - 
                                                            
カーテン
 
屋外設備
- 
                                                            
個別ポスト
 
109 | シングル | 2025/01/08 ~
| 契約料(契約時のみ) | ¥50,000 | |
|---|---|---|
| 毎月費用 | 賃料 | ¥40,000 | 
| 共益費 | 
                                    ¥15,000                
                                 共益費に水道光熱費を含む  | 
        |
| 合計 | 
                                ¥55,000
                                 ¥39,000 スマート会員で最大16,000円割引!  | 
        |
| 初期費用概算 | 
                ¥105,000 ※)契約日が月初1日の場合の概算です。正確な金額はカート画面からお見積りが可能です。  | 
        |
| カード決済:家賃・初期費用(カード決済は外国籍の方のみご利用頂けます。日本人の方はご利用頂けません。予めご了承ください。) 所在階:1階 部屋タイプ: シングル ベッド数:1 広さ:4.95m² 入居条件:男性/女性 定員:1名 * 友人宿泊:可 *の追加費用が必要になります | ||
ロケーション
- 
                                    
階段に近い
 - 
                                    
トイレに近い
 
家電・機器
- 
                                                            
エアコン
 - 
                                                            
照明器具
 - 
                                                            
テレビジャック
 
インターネット
- 
                                                            
有線LAN
 
調理家電
- 
                                                            
冷蔵庫
 
家具
- 
                                                            
収納
 - 
                                                            
シングルベッド
 - 
                                                            
デスク&チェア
 - 
                                                            
カーテン
 
屋外設備
- 
                                                            
個別ポスト
 
110 | シングル | 満室
| 契約料(契約時のみ) | ¥50,000 | |
|---|---|---|
| 毎月費用 | 賃料 | ¥46,000 | 
| 共益費 | 
                                    ¥15,000                
                                 共益費に水道光熱費を含む  | 
        |
| 合計 | 
                                ¥61,000
                                 ¥45,000 スマート会員で最大16,000円割引!  | 
        |
| 初期費用概算 | 
                ¥111,000 ※)契約日が月初1日の場合の概算です。正確な金額はカート画面からお見積りが可能です。  | 
        |
| カード決済:家賃・初期費用(カード決済は外国籍の方のみご利用頂けます。日本人の方はご利用頂けません。予めご了承ください。) 所在階:1階 部屋タイプ: シングル ベッド数:1 広さ:6.2m² 入居条件:男性/女性 定員:1名 * 友人宿泊:可 *の追加費用が必要になります | ||
ロケーション
- 
                                    
角部屋
 - 
                                    
トイレに近い
 
家電・機器
- 
                                                            
エアコン
 - 
                                                            
照明器具
 - 
                                                            
テレビジャック
 
インターネット
- 
                                                            
有線LAN
 
調理家電
- 
                                                            
冷蔵庫
 
家具
- 
                                                            
収納
 - 
                                                            
シングルベッド
 - 
                                                            
デスク&チェア
 - 
                                                            
カーテン
 
屋外設備
- 
                                                            
個別ポスト
 
111 | シングル | 満室
| 契約料(契約時のみ) | ¥50,000 | |
|---|---|---|
| 毎月費用 | 賃料 | ¥42,000 | 
| 共益費 | 
                                    ¥15,000                
                                 共益費に水道光熱費を含む  | 
        |
| 合計 | 
                                ¥57,000
                                 ¥41,000 スマート会員で最大16,000円割引!  | 
        |
| 初期費用概算 | 
                ¥107,000 ※)契約日が月初1日の場合の概算です。正確な金額はカート画面からお見積りが可能です。  | 
        |
| カード決済:家賃・初期費用(カード決済は外国籍の方のみご利用頂けます。日本人の方はご利用頂けません。予めご了承ください。) 所在階:1階 部屋タイプ: シングル ベッド数:1 広さ:5.28m² 入居条件:男性/女性 定員:1名 * 友人宿泊:可 *の追加費用が必要になります | ||
ロケーション
- 
                                    
角部屋
 - 
                                    
トイレに近い
 
家電・機器
- 
                                                            
エアコン
 - 
                                                            
照明器具
 - 
                                                            
テレビジャック
 
インターネット
- 
                                                            
有線LAN
 
調理家電
- 
                                                            
冷蔵庫
 
家具
- 
                                                            
収納
 - 
                                                            
シングルベッド
 - 
                                                            
デスク&チェア
 - 
                                                            
カーテン
 
屋外設備
- 
                                                            
個別ポスト
 
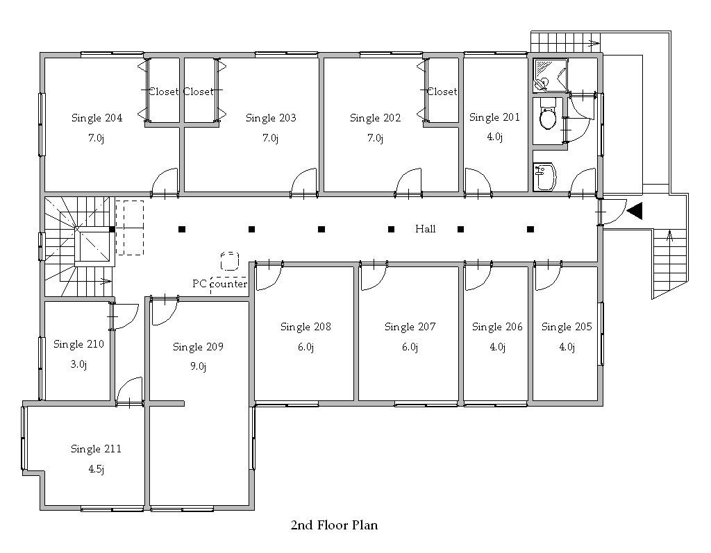
201 | シングル | 満室
| 契約料(契約時のみ) | ¥50,000 | |
|---|---|---|
| 毎月費用 | 賃料 | ¥49,000 | 
| 共益費 | 
                                    ¥15,000                
                                 共益費に水道光熱費を含む  | 
        |
| 合計 | 
                                ¥64,000
                                 ¥48,000 スマート会員で最大16,000円割引!  | 
        |
| 初期費用概算 | 
                ¥114,000 ※)契約日が月初1日の場合の概算です。正確な金額はカート画面からお見積りが可能です。  | 
        |
| カード決済:家賃・初期費用(カード決済は外国籍の方のみご利用頂けます。日本人の方はご利用頂けません。予めご了承ください。) 所在階:2階 部屋タイプ: シングル ベッド数:1 広さ:6.6m² 入居条件:男性/女性 定員:1名 * 友人宿泊:可 *の追加費用が必要になります | ||
ロケーション
- 
                                    
トイレに近い
 
家電・機器
- 
                                                            
エアコン
 - 
                                                            
照明器具
 - 
                                                            
テレビジャック
 
インターネット
- 
                                                            
有線LAN
 
調理家電
- 
                                                            
冷蔵庫
 
家具
- 
                                                            
収納
 - 
                                                            
シングルベッド
 - 
                                                            
デスク&チェア
 - 
                                                            
カーテン
 
屋外設備
- 
                                                            
個別ポスト
 
202 | シングル | 満室
| 契約料(契約時のみ) | ¥50,000 | |
|---|---|---|
| 毎月費用 | 賃料 | ¥61,000 | 
| 共益費 | 
                                    ¥15,000                
                                 共益費に水道光熱費を含む  | 
        |
| 合計 | 
                                ¥76,000
                                 ¥60,000 スマート会員で最大16,000円割引!  | 
        |
| 初期費用概算 | 
                ¥126,000 ※)契約日が月初1日の場合の概算です。正確な金額はカート画面からお見積りが可能です。  | 
        |
| カード決済:家賃・初期費用(カード決済は外国籍の方のみご利用頂けます。日本人の方はご利用頂けません。予めご了承ください。) 所在階:2階 部屋タイプ: シングル ベッド数:1 広さ:11.5m² 入居条件:男性/女性 定員:1名 * 友人宿泊:可 *の追加費用が必要になります | ||
家電・機器
- 
                                                            
エアコン
 - 
                                                            
照明器具
 - 
                                                            
テレビジャック
 
インターネット
- 
                                                            
有線LAN
 
調理家電
- 
                                                            
冷蔵庫
 
家具
- 
                                                            
収納
 - 
                                                            
シングルベッド
 - 
                                                            
デスク&チェア
 - 
                                                            
カーテン
 
屋外設備
- 
                                                            
個別ポスト
 
203 | シングル | 満室
| 契約料(契約時のみ) | ¥50,000 | |
|---|---|---|
| 毎月費用 | 賃料 | ¥61,000 | 
| 共益費 | 
                                    ¥15,000                
                                 共益費に水道光熱費を含む  | 
        |
| 合計 | 
                                ¥76,000
                                 ¥60,000 スマート会員で最大16,000円割引!  | 
        |
| 初期費用概算 | 
                ¥126,000 ※)契約日が月初1日の場合の概算です。正確な金額はカート画面からお見積りが可能です。  | 
        |
| カード決済:家賃・初期費用(カード決済は外国籍の方のみご利用頂けます。日本人の方はご利用頂けません。予めご了承ください。) 所在階:2階 部屋タイプ: シングル ベッド数:1 広さ:11.5m² 入居条件:男性/女性 定員:1名 * 友人宿泊:可 *の追加費用が必要になります | ||
家電・機器
- 
                                                            
エアコン
 - 
                                                            
照明器具
 - 
                                                            
テレビジャック
 
インターネット
- 
                                                            
有線LAN
 
調理家電
- 
                                                            
冷蔵庫
 
家具
- 
                                                            
収納
 - 
                                                            
シングルベッド
 - 
                                                            
デスク&チェア
 - 
                                                            
カーテン
 
屋外設備
- 
                                                            
個別ポスト
 
204 | シングル | 2025/01/08 ~
| 契約料(契約時のみ) | ¥50,000 | |
|---|---|---|
| 毎月費用 | 賃料 | ¥62,000 | 
| 共益費 | 
                                    ¥15,000                
                                 共益費に水道光熱費を含む  | 
        |
| 合計 | 
                                ¥77,000
                                 ¥61,000 スマート会員で最大16,000円割引!  | 
        |
| 初期費用概算 | 
                ¥127,000 ※)契約日が月初1日の場合の概算です。正確な金額はカート画面からお見積りが可能です。  | 
        |
| カード決済:家賃・初期費用(カード決済は外国籍の方のみご利用頂けます。日本人の方はご利用頂けません。予めご了承ください。) 所在階:2階 部屋タイプ: シングル ベッド数:1 広さ:11.5m² 入居条件:男性/女性 定員:1名 * 友人宿泊:可 *の追加費用が必要になります | ||
ロケーション
- 
                                    
角部屋
 - 
                                    
階段に近い
 
家電・機器
- 
                                                            
エアコン
 - 
                                                            
照明器具
 - 
                                                            
テレビジャック
 
インターネット
- 
                                                            
有線LAN
 
調理家電
- 
                                                            
冷蔵庫
 
家具
- 
                                                            
収納
 - 
                                                            
シングルベッド
 - 
                                                            
デスク&チェア
 - 
                                                            
カーテン
 
屋外設備
- 
                                                            
個別ポスト
 
205 | シングル | 満室
| 契約料(契約時のみ) | ¥50,000 | |
|---|---|---|
| 毎月費用 | 賃料 | ¥57,000 | 
| 共益費 | 
                                    ¥15,000                
                                 共益費に水道光熱費を含む  | 
        |
| 合計 | 
                                ¥72,000
                                 ¥56,000 スマート会員で最大16,000円割引!  | 
        |
| 初期費用概算 | 
                ¥122,000 ※)契約日が月初1日の場合の概算です。正確な金額はカート画面からお見積りが可能です。  | 
        |
| カード決済:家賃・初期費用(カード決済は外国籍の方のみご利用頂けます。日本人の方はご利用頂けません。予めご了承ください。) 所在階:2階 部屋タイプ: シングル ベッド数:1 広さ:6.6m² 入居条件:男性/女性 定員:1名 * 友人宿泊:可 *の追加費用が必要になります | ||
ロケーション
- 
                                    
角部屋
 - 
                                    
トイレに近い
 - 駐車場、駐輪場に近い
 
家電・機器
- 
                                                            
エアコン
 - 
                                                            
照明器具
 - 
                                                            
テレビジャック
 
インターネット
- 
                                                            
有線LAN
 
調理家電
- 
                                                            
冷蔵庫
 
家具
- 
                                                            
収納
 - 
                                                            
シングルベッド
 - 
                                                            
デスク&チェア
 - 
                                                            
カーテン
 
屋外設備
- 
                                                            
個別ポスト
 
206 | シングル | 満室
| 契約料(契約時のみ) | ¥50,000 | |
|---|---|---|
| 毎月費用 | 賃料 | ¥53,000 | 
| 共益費 | 
                                    ¥15,000                
                                 共益費に水道光熱費を含む  | 
        |
| 合計 | 
                                ¥68,000
                                 ¥52,000 スマート会員で最大16,000円割引!  | 
        |
| 初期費用概算 | 
                ¥118,000 ※)契約日が月初1日の場合の概算です。正確な金額はカート画面からお見積りが可能です。  | 
        |
| カード決済:家賃・初期費用(カード決済は外国籍の方のみご利用頂けます。日本人の方はご利用頂けません。予めご了承ください。) 所在階:2階 部屋タイプ: シングル ベッド数:1 広さ:6.6m² 入居条件:男性/女性 定員:1名 * 友人宿泊:可 *の追加費用が必要になります | ||
ロケーション
- 駐車場、駐輪場に近い
 
家電・機器
- 
                                                            
エアコン
 - 
                                                            
照明器具
 - 
                                                            
テレビジャック
 
インターネット
- 
                                                            
有線LAN
 
調理家電
- 
                                                            
冷蔵庫
 
家具
- 
                                                            
収納
 - 
                                                            
シングルベッド
 - 
                                                            
デスク&チェア
 - 
                                                            
カーテン
 
屋外設備
- 
                                                            
個別ポスト
 
207 | シングル | 満室
| 契約料(契約時のみ) | ¥50,000 | |
|---|---|---|
| 毎月費用 | 賃料 | ¥57,000 | 
| 共益費 | 
                                    ¥15,000                
                                 共益費に水道光熱費を含む  | 
        |
| 合計 | 
                                ¥72,000
                                 ¥56,000 スマート会員で最大16,000円割引!  | 
        |
| 初期費用概算 | 
                ¥122,000 ※)契約日が月初1日の場合の概算です。正確な金額はカート画面からお見積りが可能です。  | 
        |
| カード決済:家賃・初期費用(カード決済は外国籍の方のみご利用頂けます。日本人の方はご利用頂けません。予めご了承ください。) 所在階:2階 部屋タイプ: シングル ベッド数:1 広さ:9.9m² 入居条件:男性/女性 定員:1名 * 友人宿泊:可 *の追加費用が必要になります | ||
ロケーション
- 駐車場、駐輪場に近い
 
家電・機器
- 
                                                            
エアコン
 - 
                                                            
照明器具
 - 
                                                            
テレビジャック
 
インターネット
- 
                                                            
有線LAN
 
調理家電
- 
                                                            
冷蔵庫
 
家具
- 
                                                            
収納
 - 
                                                            
シングルベッド
 - 
                                                            
デスク&チェア
 - 
                                                            
カーテン
 
屋外設備
- 
                                                            
個別ポスト
 
208 | シングル | 満室
| 契約料(契約時のみ) | ¥50,000 | |
|---|---|---|
| 毎月費用 | 賃料 | ¥57,000 | 
| 共益費 | 
                                    ¥15,000                
                                 共益費に水道光熱費を含む  | 
        |
| 合計 | 
                                ¥72,000
                                 ¥56,000 スマート会員で最大16,000円割引!  | 
        |
| 初期費用概算 | 
                ¥122,000 ※)契約日が月初1日の場合の概算です。正確な金額はカート画面からお見積りが可能です。  | 
        |
| カード決済:家賃・初期費用(カード決済は外国籍の方のみご利用頂けます。日本人の方はご利用頂けません。予めご了承ください。) 所在階:2階 部屋タイプ: シングル ベッド数:1 広さ:9.9m² 入居条件:男性/女性 定員:1名 * 友人宿泊:可 *の追加費用が必要になります | ||
ロケーション
- 駐車場、駐輪場に近い
 
家電・機器
- 
                                                            
エアコン
 - 
                                                            
照明器具
 - 
                                                            
テレビジャック
 
インターネット
- 
                                                            
有線LAN
 
調理家電
- 
                                                            
冷蔵庫
 
家具
- 
                                                            
収納
 - 
                                                            
シングルベッド
 - 
                                                            
デスク&チェア
 - 
                                                            
カーテン
 
屋外設備
- 
                                                            
個別ポスト
 
209 | シングル | 満室
| 契約料(契約時のみ) | ¥50,000 | |
|---|---|---|
| 毎月費用 | 賃料 | ¥62,000 | 
| 共益費 | 
                                    ¥15,000                
                                 共益費に水道光熱費を含む  | 
        |
| 合計 | 
                                ¥77,000
                                 ¥61,000 スマート会員で最大16,000円割引!  | 
        |
| 初期費用概算 | 
                ¥127,000 ※)契約日が月初1日の場合の概算です。正確な金額はカート画面からお見積りが可能です。  | 
        |
| カード決済:家賃・初期費用(カード決済は外国籍の方のみご利用頂けます。日本人の方はご利用頂けません。予めご了承ください。) 所在階:2階 部屋タイプ: シングル ベッド数:1 広さ:14.85m² 入居条件:男性/女性 定員:1名 * 友人宿泊:可 *の追加費用が必要になります | ||
ロケーション
- 駐車場、駐輪場に近い
 
家電・機器
- 
                                                            
エアコン
 - 
                                                            
照明器具
 - 
                                                            
テレビジャック
 
インターネット
- 
                                                            
有線LAN
 
調理家電
- 
                                                            
冷蔵庫
 
家具
- 
                                                            
収納
 - 
                                                            
シングルベッド
 - 
                                                            
デスク&チェア
 - 
                                                            
カーテン
 
屋外設備
- 
                                                            
個別ポスト
 
210 | シングル | 満室
| 契約料(契約時のみ) | ¥50,000 | |
|---|---|---|
| 毎月費用 | 賃料 | ¥37,000 | 
| 共益費 | 
                                    ¥15,000                
                                 共益費に水道光熱費を含む  | 
        |
| 合計 | 
                                ¥52,000
                                 ¥36,000 スマート会員で最大16,000円割引!  | 
        |
| 初期費用概算 | 
                ¥102,000 ※)契約日が月初1日の場合の概算です。正確な金額はカート画面からお見積りが可能です。  | 
        |
| カード決済:家賃・初期費用(カード決済は外国籍の方のみご利用頂けます。日本人の方はご利用頂けません。予めご了承ください。) 所在階:2階 部屋タイプ: シングル ベッド数:1 広さ:4.95m² 入居条件:男性/女性 定員:1名 * 友人宿泊:可 *の追加費用が必要になります | ||
ロケーション
- 
                                    
階段に近い
 
家電・機器
- 
                                                            
エアコン
 - 
                                                            
照明器具
 - 
                                                            
テレビジャック
 
インターネット
- 
                                                            
有線LAN
 
調理家電
- 
                                                            
冷蔵庫
 
家具
- 
                                                            
収納
 - 
                                                            
シングルベッド
 - 
                                                            
デスク&チェア
 - 
                                                            
カーテン
 
屋外設備
- 
                                                            
個別ポスト
 
211 | シングル | 満室
| 契約料(契約時のみ) | ¥50,000 | |
|---|---|---|
| 毎月費用 | 賃料 | ¥53,000 | 
| 共益費 | 
                                    ¥15,000                
                                 共益費に水道光熱費を含む  | 
        |
| 合計 | 
                                ¥68,000
                                 ¥52,000 スマート会員で最大16,000円割引!  | 
        |
| 初期費用概算 | 
                ¥118,000 ※)契約日が月初1日の場合の概算です。正確な金額はカート画面からお見積りが可能です。  | 
        |
| カード決済:家賃・初期費用(カード決済は外国籍の方のみご利用頂けます。日本人の方はご利用頂けません。予めご了承ください。) 所在階:2階 部屋タイプ: シングル ベッド数:1 広さ:7.4m² 入居条件:男性/女性 定員:1名 * 友人宿泊:可 *の追加費用が必要になります | ||
ロケーション
- 
                                    
角部屋
 
家電・機器
- 
                                                            
エアコン
 - 
                                                            
照明器具
 - 
                                                            
テレビジャック
 
インターネット
- 
                                                            
有線LAN
 
調理家電
- 
                                                            
冷蔵庫
 
家具
- 
                                                            
収納
 - 
                                                            
シングルベッド
 - 
                                                            
デスク&チェア
 - 
                                                            
カーテン
 
屋外設備
- 
                                                            
個別ポスト
 
パノラマビュー
物件マネージャー
            
        
- ニックネーム りえ
 - 物件のいいところ(アピール) 最寄りの鵜の木駅まで徒歩4分、渋谷駅まで最速22分。近い!田園調布も近く多摩川沿いなのでとても落ち着いた静かなエリアです。ハウスメイトは国際職豊かで仲良しで元気いっぱい☆
 - 私のシェアハウス歴 学生の頃、オーストラリアにファームステイをしました!大学生の頃に1人暮らしを始め、学校から近いこともありみんなの泊まり場になっていました!
 
イベント情報
                現在この物件で
開催予定のイベントはありません。                                    過去のイベント                            
タイムライン
近い物件
大田区のシェアハウス
SHAREHOUSE
カフェROSE TOKYO
女性専用のこのシェアハウスはいつも綺麗でマッサージソファがリビングにあるこのハウスはテレビにも登場しました。最寄り駅は東急池上線の御嶽山駅、……
東京都大田区東嶺町
        東急池上線 / 御嶽山 2分
                    入居条件:
                            女性                        
- 礼金なし
 - 敷金なし
 - 保証金なし
 - 仲介手数料なし
 - 保証人不要
 - 保証会社不要
 - 外国人入居可
 - 家具家電付き
 - 女性専用物件
 - 女性専用部屋あり
 宅配ボックス
駅5分以内
                            禁煙ハウス
                    
¥62,000 - ¥69,000 満室
SHAREHOUSE
カフェSAKURA TOKYO (田園調布 / 沼部)
樹齢80年の大きな桜の木がハウスの隣から寄り添うように見守る女性専用のシェアハウス!南向きの日が差し込むリビングの大きな窓から見れますよ♪渋……
東京都大田区西嶺町
        東急多摩川線 / 沼部 7分
                    入居条件:
                            女性                        
- 礼金なし
 - 敷金なし
 - 保証金なし
 - 仲介手数料なし
 - 保証人不要
 - 保証会社不要
 - 外国人入居可
 - 家具家電付き
 - 女性専用物件
 - 女性専用部屋あり
 駐輪場
宅配ボックス
                            禁煙ハウス
                    
¥58,000 - ¥69,000 満室
SHAREHOUSE
ジアス羽田
品川駅まで11分乗り換えなしで通勤・通学可能です。羽田空港へもわずか7分、空港勤務の方や海外出張が多い方にも非常に便利なエリアです。また、東……
東京都大田区萩中
        京浜急行空港線 / 大鳥居 10分
                    入居条件:
                            女性                            男性                        
- 礼金なし
 - 敷金なし
 - 保証金なし
 - 仲介手数料なし
 - 保証人不要
 - 保証会社不要
 - 外国人入居可
 - 家具家電付き
 駐輪場
シアタールーム
バイク駐輪場
宅配ボックス
庭・屋上・テラスつき
                            禁煙ハウス
                            2名以上入居可部屋あり
                    
¥54,000 - ¥70,000 満室
- 
                    男女比:
                    女性男性
 - 
                    外国人率:
                    外国人 日本人
 - 
                    年代:
                    10〜29歳 30〜49歳 50歳以上
 
鵜の木駅のシェアハウス
SHAREHOUSE
PLAIN Share TOKYO (田園調布 / 鵜の木)
2023年リニューアルオープン!白を基調とし清潔感がある多摩川沿いの女性専用物件です。壁のデザインが可愛い部屋とカフェのようなラウンジ空間に……
東京都大田区鵜の木
        東急多摩川線 / 鵜の木 7分
                    入居条件:
                            女性                        
- 礼金なし
 - 敷金なし
 - 保証金なし
 - 仲介手数料なし
 - 保証人不要
 - 保証会社不要
 - 外国人入居可
 - 家具家電付き
 - 女性専用物件
 - 女性専用部屋あり
 駐輪場
宅配ボックス
                            禁煙ハウス
                    
¥61,000 - ¥63,000 空室予定
APARTMENT
ファサード田園調布
東京都大田区田園調布南
        
                    入居条件:
                            女性                            男性                        
- 家具・家電なし
 - 最低契約期間:1年
 - 保証金なし
 - 保証人不要
 - 外国人入居可
 
¥49,000 - ¥72,000 空室
東急多摩川線のシェアハウス
APARTMENT
ファサード田園調布
東京都大田区田園調布南
        
                    入居条件:
                            女性                            男性                        
- 家具・家電なし
 - 最低契約期間:1年
 - 保証金なし
 - 保証人不要
 - 外国人入居可
 
¥49,000 - ¥72,000 空室
APARTMENT
アバンテリム蒲田
東京都大田区東矢口3丁目
        
                    入居条件:
                            女性                            男性                        
- 家具・家電なし
 - 最低契約期間:1年
 - 礼金なし
 - 敷金なし
 - 保証金なし
 - 保証人不要
 - 外国人入居可
 
                            水回り付き個室あり
                    
¥83,000 - ¥83,000 空室
APARTMENT
アジールコート池上
東京都大田区西蒲田2丁目
        
                    入居条件:
                            女性                            男性                        
- 家具・家電なし
 - 最低契約期間:1年
 - 礼金なし
 - 保証金なし
 - 保証人不要
 - 外国人入居可
 
                            水回り付き個室あり
                    
¥93,000 - ¥168,000 空室予定
- 
                        エントランス
                         - 
                        ラウンジ
                         - 
                        ラウンジ
                         - 
                        コーヒーマシン
                         - 
                        共有PC&WIFIも完備
                         - 
                        キッチンは3口システムIH
                         - 
                        シャワールーム
                         - 
                        2階女性専用バスルーム
                         - 
                        101
                         - 
                        105
                         - 
                        209
                         - 
                        110
                         - 
                        バルコニー
                         - 
                        夜のエントランス
                         - 
                        鵜の木駅
                         - 
                        ガスト
                         - 
                        ドトール
                         - 
                        maruetsu
                         - 
                        すき家
                         - 
                        100円ショップ
                         - 
                        セブンイレブン
                         - 
                        ホームセンター
                         - 
                        物件近くの銭湯
                         
101
102
103
- 
                        部屋全体窓側
![]()
 - 
                        ベッド収納
![]()
 - 
                        ベッド収納
![]()
 - 
                        部屋全体入口側
![]()
 - 
                        冷蔵庫外観
![]()
 - 
                        冷蔵庫中
![]()
 - 
                        
![]()
 
104
106
107
108
109
110
111
201
202
203
204
205
206
207
208
209
210
211
21件見つかりました
大田区のエリア情報
            東京都大田区は、東京都の東南部に位置し、東京湾に面しています。また、南は多摩川を挟んで神奈川県の川崎市に、そして区の他方面の境界線は、品川区、目黒区、世田谷区に隣接しています。
この区は、かつての大森区と蒲田区が合併したもので、昭和22年に現在の東京都大田区となりました。見ても分かるように、大田区の名は、大森の大と蒲田の田の文字を一字ずつ取って命名されているのです。また、二つの区が合併したこともあり、その面積は東京都23区内で一番広いものとなっています。
この地域は、武蔵野台地の先端にあることと、海と川に面したその地理的要因から、昔から人が住みやすかったため、区内には池上本門寺五重塔、大森貝塚、多摩川古墳などの多くの史跡が点在しています。
関東大震災の後は、住宅地の整備が進み、高級住宅街として名の知れた田園調布など緑の多い住宅地がある他、工場団地などもあります。
また、大田区には、東京の空の玄関と言われる羽田空港(東京国際空港)があります。この空港は、国内専用の旅客ターミナルと国際線旅客ターミナルの両方が揃っていて、日本のハブ空港として活躍しています。
        
鵜の木駅の近隣駅から探す
最近閲覧した物件
- 
            
                                   
                            
            SHAREHOUSE
プレミア多摩川
東急多摩川線 / 鵜の木 4分
入居条件: 女性 男性 外国人¥37,000 - ¥62,000
 - 
            
                                   
                            
            SHAREHOUSE
プレミア駒込
東京メトロ南北線 / 駒込 5分
入居条件: 女性 男性 外国人¥69,000 - ¥75,000
 - 
            
                                   
                            
            SHAREHOUSE
プレミア吉祥寺
京王井の頭線 / 井の頭公園 15分
入居条件: 女性 男性 外国人¥55,000 - ¥59,000
 - 
            
                                   
                            
            SHAREHOUSE
プレミア上板橋
東武東上線 / 上板橋 8分
入居条件: 女性 男性 外国人¥49,000 - ¥55,000
 - 
            
                                   
                            
            SHAREHOUSE
プレミア蒲田
東急池上線 / 蓮沼 6分
入居条件: 女性 男性 外国人¥44,000 - ¥51,000
 
                    
                    
                    
                    
                    
                    
                    
                    
                        
                        
                        
                        
                        
                        
                        
                        
                        
                        
                        
                        
                        
                        
                        
                        
                        
                        
                        
                        
                        
                        
                        
                        
                        
                        
                        
                        
                        
                        
                        
                        
                        
                        
                        
                        
                        
                        
                        
                        
                        
                        
                        
                        
                        
                        
                        
                        
                        
                        
                        
                        
                        
                        
                        
                        
                        
                        
                        
                        
                        
                        
                        
                        


















