APARTMENT
オークテラス錦糸町
管理会社 株式会社オークハウス
当物件は学割がご利用いただけません。
最終更新日 2024-11-26 19:16
スマート会員 Fixプラン この物件のこだわり 礼金なし 敷金なし 保証金なし 仲介手数料なし 保証人不要 保証会社不要 外国人入居可 家具家電付き
                            I am a manager !
            
                        
                
            
                    
人気エリア錦糸町に築浅マンションタイプがオープンしました!駅徒歩9分の好立地の範囲内にはコンビニ、スーパーはもちろん、レストラン、デパート、大型家電店、映画館などのうれしい施設がたくさんあります。最寄り駅は総武線(快速)・東京メトロ半蔵門線『錦糸町駅』ですが、他に都営新宿線『菊川駅』、『住吉駅』もご利用可能です。家具家電は設置済みでカバン一つで生活が始められます。お部屋は広く、友達同士でのルームシェアやファミリーでの入居も可能です☆1部屋限りとなりますので、お早めにお問い合わせください!
物件概要
基本情報
地図
共用設備
共用スペース設備
- 
                                                            
エレベーター
 
家電・機器
- 
                                                            
洗濯機
 - 
                                                            
アイロン
 
インターネット
- 
                                                            
インターネット回線:光
 
調理家電
- 
                                                            
電子レンジ
 - 
                                                            
トースター
 
調理器具
- 
                                                            
フライパン
 - 
                                                            
皿類
 - 
                                                            
鍋類
 - 
                                                            
箸/フォーク/スプーン類
 
セキュリティ設備
- 
                                                            
玄関オートロック
 - 
                                                            
宅配ボックス
 
屋外設備
- 
                                                            
物干しスペース
 - 
                                                            
駐輪場
 - 
                                                            
バイク駐輪場
 
その他の特徴
住宅街
子供可
小規模
専用キッチン付き
水回り付き個室あり
2名入居
家族向け
外国人向け
物件写真
図面
空室情報
%NUMBER%件見つかりました
402 | アパートメント | 満室
| 契約料(契約時のみ) | ¥50,000 | |
|---|---|---|
| 毎月費用 | 賃料 | ¥175,000 | 
| 共益費 | 
                                    ¥22,000                
                                 共益費に水道光熱費を含む  | 
        |
| 合計 | 
                                ¥197,000
                                 ¥181,000 スマート会員で最大16,000円割引!  | 
        |
| 初期費用概算 | 
                ¥247,000 ※)契約日が月初1日の場合の概算です。正確な金額はカート画面からお見積りが可能です。  | 
        |
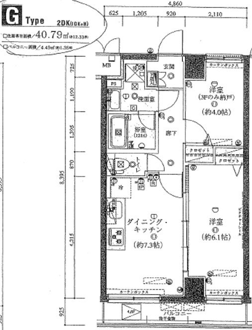
| カード決済:家賃・初期費用(カード決済は外国籍の方のみご利用頂けます。日本人の方はご利用頂けません。予めご了承ください。) 所在階:4階 部屋タイプ: アパートメント 間取り:2DK ベッド数:1 広さ:40.79m² 入居条件:男性/女性 定員:3名 * 友人宿泊:可 *2名入居時20,000円/月, 3名入居時40,000円/月の追加費用が必要になります | ||
こだわり条件
- 
                                            
水回り付き個室
 
ロケーション
- 
                                    
トイレに近い
 
設備(水回り)
- 
                                                            
トイレ
 - 
                                                            
シャワー
 - 
                                                            
風呂
 - 
                                                            
洗面台
 - 
                                                            
温水洗浄便座
 - 
                                                            
キッチン
 
家電・機器
- 
                                                            
洗濯機
 - 
                                                            
エアコン
 - 
                                                            
照明器具
 - 
                                                            
テレビジャック
 
インターネット
- 
                                                            
WiFi
 - 
                                                            
有線LAN
 
調理家電
- 
                                                            
電子レンジ
 - 
                                                            
トースター
 - 
                                                            
冷蔵庫
 
調理器具
- 
                                                            
フライパン
 - 
                                                            
皿
 - 
                                                            
鍋
 - 
                                                            
カトラリー
 
家具
- 
                                                            
収納
 - 
                                                            
ダブルベッド
 - 
                                                            
デスク&チェア
 - 
                                                            
ソファ
 - 
                                                            
カーテン
 - 
                                                            
テーブル
 - 
                                                            
室内物干し
 
屋外設備
- 
                                                            
屋外物干し
 - 
                                                            
ベランダ
 - 
                                                            
個別ポスト
 
パノラマビュー
物件マネージャー
            
        
- ニックネーム ささもん
 - 物件のいいところ(アピール) スカイツリーまでも歩いていける街、錦糸町。利用できる路線も多く、観光、通勤にも便利です!是非、ご見学お待ちしております!
 - 私のシェアハウス歴 シドニーでシェアハウスに住んでいました。色んな国から来ているシェアメイトとお互いの国の食べ物を食べ比べたりして国際交流してました!
 
イベント情報
                現在この物件で
開催予定のイベントはありません。                            
タイムライン
近い物件
墨田区のシェアハウス
SHAREHOUSE
TOKYO SHARE ASAKUSA HONJO
下町を照らす町、本所吾妻橋に女性専用築浅シェアハウスがございます。シングルルーム10部屋のハウスには各階に洗面台とトイレを完備。女性目線で作……
東京都墨田区本所
        都営浅草線 / 本所吾妻橋 5分
                    入居条件:
                            女性                        
- 礼金なし
 - 敷金なし
 - 保証金なし
 - 仲介手数料なし
 - 保証人不要
 - 保証会社不要
 - 外国人入居可
 - 家具家電付き
 - 女性専用物件
 - 女性専用部屋あり
 駐輪場
レンタル自転車
駅5分以内
                            禁煙ハウス
                            2名以上入居可部屋あり
                    
¥63,000 - ¥64,000 空室予定
- 
                    男女比:
                    女性男性
 - 
                    外国人率:
                    外国人 日本人
 - 
                    年代:
                    10〜29歳 30〜49歳 50歳以上
 
東京メトロ半蔵門線のシェアハウス
APARTMENT
ウェルハウス広尾
東京都渋谷区東4丁目
        
                    入居条件:
                            女性                            男性                        
- 家具・家電なし
 - 最低契約期間:1年
 - 礼金なし
 - 保証金なし
 - 保証人不要
 - 外国人入居可
 
¥88,000 - ¥99,000 空室
APARTMENT
グランパセオ清澄白河Ⅱ
東京都江東区石島
        
                    入居条件:
                            女性                            男性                        
- 家具・家電なし
 - 最低契約期間:1年
 - 礼金なし
 - 敷金なし
 - 保証金なし
 - 保証人不要
 - 外国人入居可
 
                            水回り付き個室あり
                    
¥0 - ¥0
JR総武線のシェアハウス
APARTMENT
ライオンズマンション三鷹第8
東京都三鷹市下連雀3丁目
        
                    入居条件:
                            女性                            男性                        
- 最低契約期間:1年
 - 敷金なし
 - 保証金なし
 - 保証人不要
 - 外国人入居可
 - 家具家電付き
 
                            水回り付き個室あり
                    
¥70,000 - ¥70,000 空室予定
SOCIAL RESIDENCE
ソーシャルレジデンス本八幡
最寄りの鬼越駅まで徒歩2分!駐車場、カーシェアサービス有り! JR総武本線と都営新宿線の2路線利用可能な本八幡駅までも徒歩圏内にあり非常に便……
千葉県市川市鬼越
        京成本線 / 鬼越 2分
                    入居条件:
                            女性                            男性                        
- 礼金なし
 - 敷金なし
 - 保証金なし
 - 仲介手数料なし
 - 保証人不要
 - 保証会社不要
 - 外国人入居可
 - 家具家電付き
 駐輪場
駐車場
シアタールーム
喫煙スペース
ジム
バイク駐輪場
宅配ボックス
駅5分以内
パウダールーム
庭・屋上・テラスつき
                            2名以上入居可部屋あり
                            水回り付き個室あり
                    
¥57,000 - ¥106,000 空室予定
- 
                    男女比:
                    女性男性
 - 
                    外国人率:
                    外国人 日本人
 - 
                    年代:
                    10〜29歳 30〜49歳 50歳以上
 
APARTMENT
ハーモニーテラス西荻南
東京都杉並区西荻南1丁目
        
                    入居条件:
                            女性                            男性                        
- 家具・家電なし
 - 最低契約期間:1年
 - 保証金なし
 - 保証人不要
 - 外国人入居可
 
                            水回り付き個室あり
                    
¥0 - ¥0
JR総武線快速のシェアハウス
SOCIAL RESIDENCE
市川ブルグ
「東京駅」「秋葉原駅」「日暮里駅」に電車で約20分の立地にNEW OPEN!まるで美術館のような外観のこのハウスは、いたるところにある大きな……
千葉県市川市須和田
        京成本線 / 市川真間 13分
                    入居条件:
                            女性                            男性                        
- 礼金なし
 - 敷金なし
 - 保証金なし
 - 仲介手数料なし
 - 保証人不要
 - 保証会社不要
 - 外国人入居可
 - 家具家電付き
 駐輪場
シアタールーム
防音室
庭・屋上・テラスつき
                            2名以上入居可部屋あり
                            水回り付き個室あり
                    
¥54,000 - ¥203,000 空室予定
- 
                    男女比:
                    女性男性
 - 
                    外国人率:
                    外国人 日本人
 - 
                    年代:
                    10〜29歳 30〜49歳 50歳以上
 
SHAREHOUSE
プレミア新小岩
【セミプライベートルームに空気清浄機設置しました】駅チカ徒歩1分!東京駅まで直通約13分のアクセス良好物件。JR総武線新小岩駅より徒歩1分で……
東京都葛飾区新小岩
        JR総武線 / 新小岩 1分
                    入居条件:
                            女性                            男性                        
- 礼金なし
 - 敷金なし
 - 保証金なし
 - 仲介手数料なし
 - 保証人不要
 - 保証会社不要
 - 外国人入居可
 - 家具家電付き
 - 女性専用部屋あり
 駅5分以内
                            2名以上入居可部屋あり
                    
¥40,000 - ¥59,000 空室
- 
                    男女比:
                    女性男性
 - 
                    外国人率:
                    外国人 日本人
 - 
                    年代:
                    10〜29歳 30〜49歳 50歳以上
 
APARTMENT
オークアパートメント新小岩
【東京都内で安くアパートに住みたい方必見!】東京駅まで直通たった13分!どこに行くにもアクセス抜群の新小岩。駅まで徒歩10分の立地で駅周辺に……
東京都葛飾区西新小岩
        JR総武線 / 新小岩 14分
                    入居条件:
                            女性                            男性                        
- 礼金なし
 - 敷金なし
 - 保証金なし
 - 仲介手数料なし
 - 保証人不要
 - 保証会社不要
 - 外国人入居可
 - 家具家電付き
 駐輪場
                            2名以上入居可部屋あり
                            水回り付き個室あり
                    
¥65,000 - ¥69,000 満室
- 
                    男女比:
                    女性男性
 - 
                    外国人率:
                    外国人 日本人
 - 
                    年代:
                    10〜29歳 30〜49歳 50歳以上
 
- 
                        とっても広い2DKアパート
                         - 
                        路線図
                         - 
                        ソファや家具も備え付け
                         - 
                        きれいなキッチン&ダイニング
                         - 
                        洗濯機付きです
                         - 
                        シャワールームには広い浴槽があります
                         - 
                        トイレはもちろんウォシュレット
                         - 
                        お部屋がもう一部屋あります
                         - 
                        靴箱
                         - 
                        オートロックエントランスでセキュリティも安心
                         - 
                        ポスト
                         - 
                        マンションエントランス
                         - 
                        便利な宅配BOX付きです
                         - 
                        インターホン
                         - 
                        徒歩1分にコンビニあり!
                         - 
                        24時間営業のスーパーも入ってます
                         - 
                        駅前は何でもそろってます
                         - 
                        錦糸公園
                         - 
                        錦糸公園。春には綺麗な花が咲きます
                         - 
                        物件までの道に、スカイツリーがみえます
                         
402
1件見つかりました
墨田区のエリア情報
            東京都墨田区は、東京首都圏から見ると3キロメートルほど北東に位置していて、東側は荒川、西側には隅田川に囲まれているエリアです。
面積は約14平方キロメートルですが、その中には約25万7千人の人々が居住していて、非常に人口密度の高い地域になっています。区の中央部には東京スカイツリーも完成し街も活性化しています。人口も1995年くらいまでは減少の傾向にありましたが、東京スカイツリーの完成に伴い、増加の傾向に転じています。墨田区内には、都営浅草線やJR総武本線、京成押上線、東部スカイツリーラインなど鉄道も充実しています。自動車でも、初と高速6号向島線や首都高速7号小松川線などの自動車道が充実し、首都圏方面にも郊外方面にも快適なアクセスが可能です。また、区内は雑居ビルやマンション、戸建て住宅などの密集した都会的な雰囲気ではありますが、荒川や隅田川沿いには、公園や緑地も豊富にあり、自然を感じながら散策を楽しんだりスポーツを楽しんだりできます。
        
錦糸町駅のエリア情報
錦糸町駅は東京都墨田区にあり、JR総武線(各駅停車)とJR総武線(特急・快速)、東京メトロ半蔵門線が走る駅です。1894年に「本所駅」という名称で開業し、1915年に現在の「錦糸町駅」に名称変更されています。その後戦時中に全焼してしまいましたが再建され、1961年には南口部分に駅ビルの「テルミナ」が誕生しています。1980年には北口部分に「らがーる」が開業していて、駅に直結する商業施設が非常に充実し始めました。2017年には駅ビル部分の外装工事が行われています。JRのホーム形態は2面4線、東京メトロは1面2線になっています。JRは1番線が総武線(各駅停車)の西行き、2番線が東行き、そして3番線が総武線(特急・快速)の上り方面で4番線が下り方面です。東京メトロは1番線が大手町・渋谷・中央林間方面、2番線が押上・曳舟・北千住方面行きとなります。1日あたりの東京メトロの乗降客数は2017年の数字で105,342人となっていて、15年ほどで7万人ほど増加しています。JRの乗車人数は2017年の数字で106,164人です。利用者数がかなり多い点が特徴で、総武線の駅の中では第3位にランクインしています。
錦糸町駅の近隣駅から探す
最近閲覧した物件
- 
            
                                   
                            
            APARTMENT
オークテラス錦糸町
東京メトロ半蔵門線 / 錦糸町 9分
入居条件: 女性 男性 外国人¥175,000 - ¥175,000
 - 
            
                                   
                            
            APARTMENT
オークアパートメント与野
JR京浜東北線 / 与野 7分
入居条件: 女性 男性 外国人¥56,000 - ¥56,000
 - 
            
                                   
                            
            APARTMENT
オークアパートメント平和台
東京メトロ有楽町線 / 平和台(東京) 7分
入居条件: 女性 男性 外国人¥74,000 - ¥78,000
 - 
            
                                   
                            
            APARTMENT
オークアパートメント西日暮里
JR常磐線快速 / 三河島 5分
入居条件: 女性 男性 外国人¥86,000 - ¥94,000
 - 
            
                                   
                            
            APARTMENT
オークアパートメント東武練馬
東武東上線 / 東武練馬 10分
入居条件: 女性 男性 外国人¥59,000 - ¥63,000
 
                    
                    
                    
                    
                    
                    
                    
                        
                        
                        
                        
                        
                        
                        


















